Vente - Appartement - Paris 7ème - À vendre - Appartement 1 chambre - Rue de Verneuil

retour à la liste
agence Michaël Zingraf Real Estate
Ce bien a été vendu, ou il ne figure plus dans le catalogue Michaël Zingraf Real Estate

Paris 7ème Saint-Thomas-d'Aquin

À vendre - Appartement 1 chambre - Rue de Verneuil

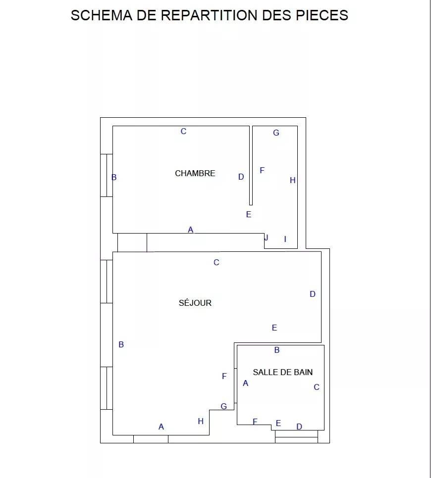
Appartement de 33,54 m² situé rue de Verneuil en plein coeur du carré des Antiquaires et à proximité immédiate de Saint Germain des Près, dans un bel immeuble de standing au 6ème étage avec ascenseur.

Le bien comprend un séjour avec une cuisine ouverte, une chambre et une salle de bains donnant sur cour parfaitement au calme.

Une gardienne est présente dans l'immeuble.

Référence : MZIPARG059

Prestations

  • Double vitrage
  • Ascenseur
  • Concierge
  • Digicode
  • Interphone
  • Porte blindée

Contact

Vous aussi vendez votre bien avec Michaël Zingraf Real Estate

Je souhaite recevoir les offres et les informations du groupe Michaël Zingraf Real Estate