Verkauf - Anwesen - Le Vésinet - Wunderschönes Hotel Particulier im Stil von Napoleon III.

zurück zur Liste
agence Michaël Zingraf Real Estate
Diese Immobilie wurde verkauft oder ist nicht mehr im Katalog aufgeführt Michaël Zingraf Real Estate

Le Vésinet

Wunderschönes Hotel Particulier im Stil von Napoleon III.

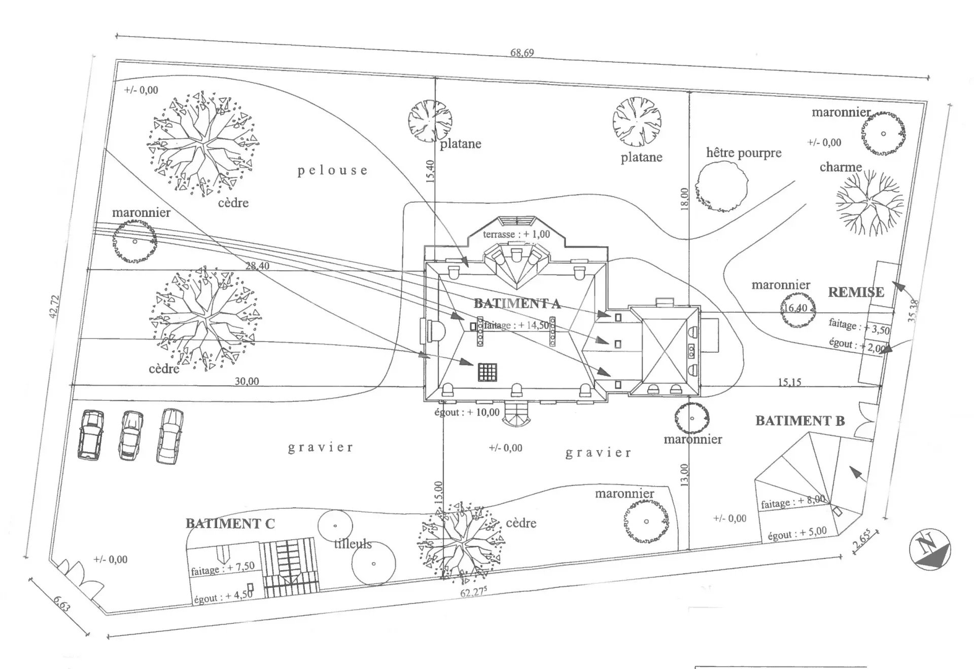
Le Vesinet, 11 km westlich von Paris, in einer grünen und geschützten Umgebung, bieten wir Ihnen dieses wunderschöne Familienanwesen in einem 3060 m² großen Park mit hundertjährigen Zedern. Das Haupthaus im Stil eines Hotel Particulier Napoleon III aus dem Jahr 1873 mit einer Fläche von ca. 1000 m² (225 m² pro Ebene) öffnet sich über eine wunderschöne Eingangshalle, die zum Wohnzimmer, Esszimmer, zur Küche und zur Bibliothek führt. Im ersten Stock befinden sich 4 komplette Suiten. Im zweiten Stock befinden sich 4 weitere Suiten und ein separates Apartment.
Im Untergeschoss, das vollständig ausgebaut wurde, befinden sich die technischen Räume (Klimaanlage, Waschküche, Keller usw.), eine zweite Küche, eine Disco-Bar, ein Billardzimmer und zahlreiche Abstellräume.
Am Eingang des Parks befindet sich ein Haus für die Parkwächter (70 m² in 3 Zimmern). Auf der anderen Seite des Parks ein Gästehaus (von 100 m² in 4 Zimmern). Eine Garage für 2 bis 3 Autos. Ein Hundezwinger (beheizt). Eine wunderbare Sache! Vermietung das ganze Jahr über möglich. Bitte fragen Sie uns

Referenz : MZIPA0268

Prestations

  • Kamin
  • Doppelverglasung
  • Internet
  • Grill
  • Brandmeldeanlage
  • Glasfaser
  • Digitalcode
  • Gegensprechanlage
  • Carport
  • Umzäunungen
  • Fahrradverleih
  • Hausmeisterhaus

Contact

Vous aussi vendez votre bien avec Michaël Zingraf Real Estate

Ich möchte Angebote und Informationen der Michaël Zingraf Real Estate Group erhalten.