Verkauf - Wohnung - Èze - Eze – Neues Programm

Eze – Neues Programm

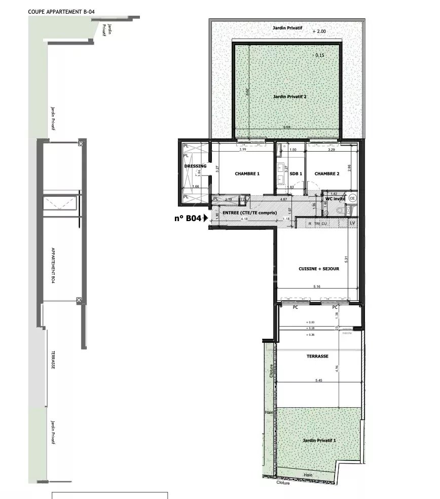
77 m2 Wohnfläche

0 m2 Terrasse

2 Zimmer

979 000 € Verkaufspreis

Èze

Eze – Neues Programm

In idealer Lage in Èze, nur 10 Autominuten von den Stränden entfernt, besteht diese schöne 77 m² große Wohnung mit Terrasse und zwei Gärten aus einem hellen Wohnzimmer, zwei Schlafzimmern und einem Badezimmer. Sie ist Teil einer außergewöhnlichen neuen Wohnanlage mit Swimmingpool.
Die 22 Wohnungen mit 2 bis 5 Zimmern sind überwiegend nach Süden ausgerichtet und bieten größtenteils einen spektakulären Meerblick.

Diese seltene Immobilie wird durch einen Tiefgaragenstellplatz und eine hochwertige Ausstattung ergänzt.
Wohnanlage im Bau, Fertigstellung April 2027. Reduzierte Notarkosten.
Referenz : MZISJ1782
Contact
Interessiert Sie diese Immobilie?
Property Broker

Ich möchte Angebote und Informationen der Michaël Zingraf Real Estate Group erhalten.

Christie's International Real Estate

Prestations

  • Schwimmbad in Miteigentum
  • Sicherheitstür


Informationen über die Risiken, denen dieses Gut ausgesetzt ist, finden Sie auf der Website Georisques : www.georisques.gouv.fr

Unsere Agenturen à votre service
Michaël Zingraf Saint-Jean Cap Ferrat 1330 boulevard Napoléon III Pont Saint-Jean 06230 Villefranche-sur-Mer
agence Michaël Zingraf Saint-Jean Cap Ferrat
Property Broker

Anita BELYAEVA

Ähnliche Immobilien